Электрические схемы различных модулей электрооборудования автомобиля Volkswagen Tiguan с 2007 года выпуска. Показана схема соединения жгутов, управления освещением, фарами, стелоподъёмниками и датчиками. Для увеличения изображения кликните на схему и увеличьте на весь экран компьютера. В конце страницы есть полный список и схема предохранителей данного авто. Все материалы предоставлены бесплатно и предназначены для самостоятельного ремонта электрооборудования Тигуан.
Электрооборудование Фольксваген Тигуан
Базовая комплектация - реле электропитания и блок управления

Схема блокировки и реле разгрузки

Датчик угла поворота и вызов дисплея Тигуан

Схема противотуманных фар и корректора


Стоп-сигналы и фонари заднего хода автомобиля

Электродвигатели очистителя, датчик дождя, освещённости

Электрооборудование плафонов освещения

Схема подогрева сидений и прикуривателя 12 В

Подключение диагностического разъёма Volkswagen Tiguan с 2007 г

Другие элементы схемы



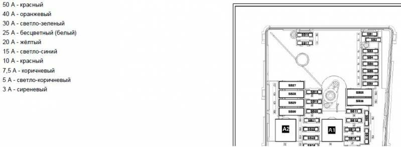
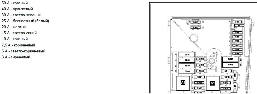
Схема и расположение предохранителей Вольксваген Тигуан
Монтажное положение предохранителей в коммутационном блоке с 2007 года


Предохранители в коммутационном блоке, в моторном отсеке слева, с 2007 года


Предохранители в блоке предохранителей C, в пространстве для ног водителя


Автоматический предохранитель в пространстве для ног Тигуан

- A - Термопредохранитель 1 регулировки положения сиденья водителя - S44-
- B - Блок управления парковочного автопилота -J791-
- C - Блок управления бортовой сети -J519-
- D - Блок реле и предохранителей 1 - SR1-
- E - Блок предохранителей C -SCF
- F - Блок реле и предохранителей 2 - SR2-
Скачать полное описание всех блоков плавких вставок
РЕМОНТ АВТОЭЛЕКТРОНИКИ ЗАРЯДНЫЕ УСТРОЙСТВА ДЛЯ АКБ

|